Gdzie ulokowane będą nowe przystanki po remoncie Placu Piłsudskiego
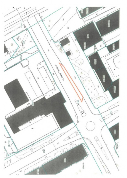
Wiadomo już, że ulica 1 Sierpnia będzie skrócona, że ani samochody osobowe, ani autobusy komunikacji miejskiej nie będą dojeżdżać przed MDK od strony ul. ks. J. Popiełuszki. Radny spytał o nowy układ komunikacyjny.
Zrobił to na prośbę mieszkańców. Nie jest tajemnicą, że na tym terenie wiele się już dzieje, że układ komunikacyjny całkiem się zmieni, że nie będzie już przystanków przed Miejskim Domem Kultury. Jak więc będzie można dojechać w okolicę MDK?
- Dotychczas autobusy zatrzymywały się naprzeciwko Miejskiego Domu Kultury, co stanowiło istotne udogodnienie dla mieszkańców – w szczególności osób starszych, dzieci oraz osób o ograniczonej mobilności. Likwidacja przejazdu przez plac rodzi uzasadnione pytania i obawy dotyczące dostępności transportu publicznego w tej części miasta- napisał w interpelacji radny Dariusz Przytuła.
Jak wyjaśnił prezydent Stalowej Woli Lucjusz Nadbereżny, lokalizacja nowych przystanków, wraz z zatokami, planowana jest w ciągu ul. Popiełuszki, w okolicach ronda przy Komendzie Powiatowej Policji. W związku z remontem Placu Piłsudskiego i zamknięciem ul. 1 Sierpnia trasy autobusów komunikacji miejskiej już zostały odpowiednio dostosowane. Ich przebieg można obejrzeć pod adresem: https://rozklad.mzk.stalowa-wola.pl/ (zakładka: Rozkład linii). Po zakończeniu remontu obecnie realizowane trasy nie ulegną zmianie. Przystanki budowane w ul. Popiełuszki w formie zatok i wiat posiadać będą standardowe dostosowania do potrzeb osób z niepełnosprawnościami, osób starszych i dzieci, stosowane w innych lokalizacjach na terenie miasta. Planowane jest oddzielenie ciągu pieszego od ścieżki rowerowej, ścieżka rowerowa przebiegać będzie za wiatą przystankową, na peronie (dla potrzeb osób niedowidzących) znajdą się płytki integracyjne.





Komentarze
Ten Dario to już dawno sfiksował na maksa!
Ruch jest wskazany parking pod wiaduktem i spacer skonczyla sie jazda po 100 na godzine
Zlikwidować komunikację miejską. Zrobić strefy czystego powietrza. Postawić parkometry. Stworzyć miasto 15-minutowe.
a pieszo tam nie dojdzie ? Ta wieś nie jest taka wielka jak Kraków
ewka robił/a sondaż i wie że wszyscy chcieli zamknięcia tej ulicy. Po co się odzywasz jak to nieprawda. No chyba że jesteś urzędnikiem UM to wam tam wszystko pasuje. Wszyscy mieszkańcy chcą , wszyscy się zgadzają itd. itp.
Edziu uważasz że starości nie dożyjesz? Może to i lepiej dla ciebie. Będziesz zawsze młody i sprawny. Tylko z umysłem coś nie tak bo nie myślisz.
co ty ewka pieprz.ysz. Kogo pytali?
Przytuła, główna stacja przesiadkowa będzie u ciebie w domu.
do wanga, lemingu ta ulica została zamknięta na prośbę wszystkich mieszkańców tam mieszkających w blokach przy tej ulicy.
"Po zakończeniu remontu obecnie realizowane trasy nie ulegną zmianie."
Czyli linia nr 8 nadal będzie krążyć jak *** w przeręblu? Kurs z centrum na Kwiatkowskiego to wycieczka objazdowa po wsi, czas dojazdu 1 godzina....
Pójdźmy krok dalej i zdemontujmy przebiegające pobliskie tory kolejowe. To dopiero byłby park!
Nie zamykajcie ulicy !!!
Jeszcze jest czas na zmianę !!!
Bardzo dobrze że zamknęli ta nic nieznacząca ulice .Będzie piękny kawałek pięknego miejsca dla mieszkańców.
Również uważam że zamknięcie ulicy 1sierpnia jest bardzo niekorzystne!!! dla mieszkańców . Ruch samochodowy i brak miejsc parkingowych ( a nie będzie dużo lepiej po zakończeniu remontu) jest uciążliwy niezmiernie dla mieszkańców tej dzielnicy. Zamykanie ulicy na czas imprez był wystarczający. Szkoda bardzo!
Również uważam że zamknięcie ulicy 1sierpnia jest bardzo niekorzystne!!! dla mieszkańców . Ruch samochodowy i brak miejsc parkingowych ( a nie będzie dużo lepiej po zakończeniu remontu) jest uciążliwy niezmiernie dla mieszkańców tej dzielnicy. Zamykanie ulicy na czas imprez był wystarczający. Szkoda bardzo!
JZM - niech pomyślę, może w miejscach do tego wyznaczonych ? Większość instytucji ma swoje wyznaczone parkingi, sklepy, czy tereny rekreacyjne też, dodatkowo istnieje coś takiego jak spacer. Czasami oprócz własnej wygody warto też popatrzeć na innych, empatia jeszcze nikomu krzywdy nie zrobiła
Jprdl co trzeba mieć w głowie żeby zatkać tak ważną ulicę
Na Rozwadowskim Rynku hehehe
Wybierajcie dalej ludzi pokroju tego Przytuły, a potem się dziwicie, że ten człek zadaje tak durne pytania.
Rzeszowski komputerowiec znów nadaje!
Mieszkaniec- a ty gdzie parkujesz jak wyjedziesz z tego swojego parkingu? Nie zajmujesz miejsca ludziom mieszkającym na innych osiedlach?
A gdzie planowany jest parking przy MDK? No jak na razie to nagminnie zajmują miejsca mieszkańcom przy ul.Dmowskiego 8A, mimo wyraźnego znaku że parking dla mieszkańców czy nawet wystawiania pachołków
A wypożyczalnie balkoników dla emerytów bo tylko tacy zostaną w Mieście gdzie będą ulokowane?